Инсталляция для писсуара: системы для офисов и коммерческих пространств
Инсталляция для писсуара — специализированная система крепления, разработанная для встроенных писсуаров в коммерческих помещениях. Если инсталляция для унитаза предназначена для жилых ванных комнат, то система инсталляции писсуара ориентирована на офисы, рестораны, торговые центры, аэропорты и другие общественные пространства. Инсталляция под писсуар скрывает все коммуникации за фальшстеной, оставляя видимым только саму чашу и систему управления (кнопка или сенсор). Это решение обеспечивает гигиену, облегчает уборку и создаёт современный интерьер. На российском рынке системы инсталляции для писсуаров менее известны, чем унитазные, но растущий спрос на коммерческие решения делает их всё более популярными среди архитекторов и проектировщиков.
Типы писсуаров и рамные системы инсталляции
Инсталляция для писсуара разделяется на два основных типа по конструкции. Подвесная инсталляция для подвесного писсуара крепится к стене аналогично унитазам — рама крепится к несущей стене, писсуар остаётся в воздухе. Система инсталляции рамного типа для подвесных писсуаров — специализированное исполнение с двойной рамой, которая позволяет монтировать несколько писсуаров рядом (обычно 2–4 штуки подряд). Инсталляция под писсуар рамного типа решает проблему кровельного монтажа в офисах: все писсуары крепятся на одной раме, что обеспечивает одинаковую высоту и расстояние между ними. Рамная система предпочтительна в коммерческих уборных, где нужно установить несколько писсуаров экономно и функционально. Высота подвесного писсуара обычно составляет 50–55 см от пола, что ниже, чем унитазы, но позволяет пользоваться несколько категориям пользователей.
Системы управления: кнопка и сенсор
Инсталляция для писсуара с кнопкой — традиционный вариант управления. Механическая кнопка расположена сверху писсуара или сбоку на облицовке. Пользователь нажимает кнопку вручную — срабатывает смыв. Система надёжна, проста в ремонте, но требует частой очистки от загрязнений. Инсталляция для писсуара сенсорная — более современное решение, растущее в популярности. Инсталляция для писсуара с сенсорным управлением использует инфракрасный датчик для автоматического срабатывания смыва. Преимущества: гигиена (не нужно прикасаться к кнопке), экономия воды (система срабатывает кратко), современный вид. Недостатки: выше стоимость, требует батарей или электропитания, чаще требуется ремонт. В коммерческих пространствах с высокой посещаемостью обе системы имеют своих сторонников.
Grohe Rapid SL: универсальная система для писсуаров
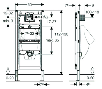
Инсталляция для писсуара Grohe — популярный выбор в коммерческом секторе. Инсталляции для писсуаров Grohe Rapid SL — серия, адаптированная не только для унитазов, но и для писсуаров. Модель инсталляция для писсуара grohe rapid sl 38786001 (артикул 38786001) — специализированная версия Rapid SL именно для писсуаров. Система инсталляции для писсуара Grohe поддерживает как механическую кнопку, так и пневматическое управление. Инсталляция для подвесного писсуара Grohe отличается универсальностью: совместима с большинством писсуаров европейских производителей. Регулировка по высоте позволяет адаптировать систему под разные высоты помещения. Встроенный бак рассчитан на несколько смывов подряд без задержки.
Geberit DuoFix: швейцарское качество в коммерческих проектах
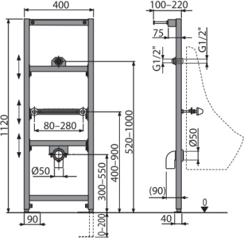
Инсталляция для писсуара Geberit — швейцарский стандарт для коммерческих помещений. Инсталляции для писсуаров Geberit DuoFix — универсальная система, совместима с писсуарами большинства брендов. Инсталляция для писсуара DuoFix поддерживает как рамные конструкции, так и одиночные писсуары. Инсталляция для писсуара GeBerit (геберит) обычно комплектуется надёжным смывным механизмом и кнопкой управления. Система инсталляции для писсуара Geberit позволяет регулировать давление воды и время слива, что критично для коммерческих пространств. Если нужна инсталляция для писсуара сенсорная, Geberit предлагает модули автоматического управления, интегрируемые в DuoFix.
Размеры, параметры и техническое исполнение
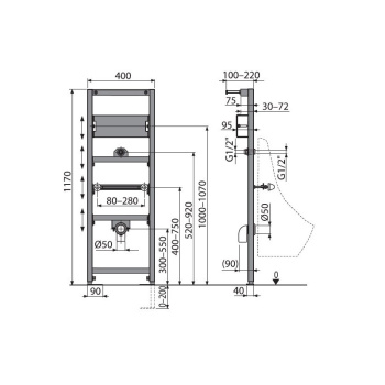
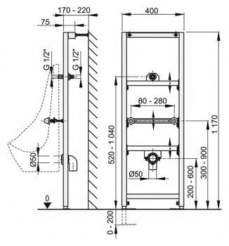
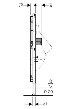
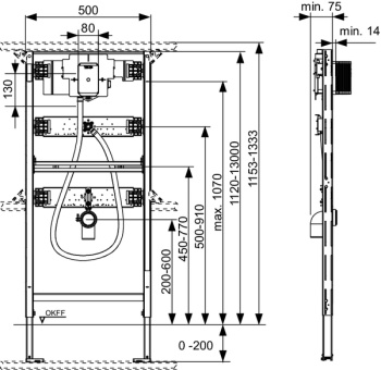
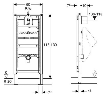
Размер инсталляции для писсуара стандартизирован, но варьируется в зависимости от типа. Высота писсуара от пола обычно 50–55 см (ниже, чем унитазы, для удобства различных категорий пользователей). Глубина фальшстены составляет 8–12 см, что позволяет разместить трубопроводы. Рамная система инсталляции для писсуаров может быть шириной от 140 см (два писсуара рядом) до 200 см (четыре писсуара). Расстояние между писсуарами в рамной системе составляет 60–65 см, что обеспечивает удобство и приватность. Встроенный бак рассчитан на 2–3 литра, что достаточно для нескольких смывов подряд в интенсивно используемых коммерческих уборных. Давление воды должно быть в диапазоне 0,3–0,8 МПа для оптимальной работы системы.
Монтаж в коммерческих пространствах
Монтаж инсталляции для писсуара выполняется архитекторами и инженерами на этапе проектирования. Система крепится к несущей стене (для подвесных) или рамная система крепится к полу и стене одновременно. Подводятся холодная вода (6–8 л/мин) и слив. Важно предусмотреть доступ для обслуживания: система должна быть легко разбираемой для чистки и ремонта фильтров. Инсталляция под писсуар устанавливается перед облицовкой плиткой или керамическими панелями. В высоконагруженных общественных уборных рекомендуется предусмотреть резервные датчики и двойную систему управления на случай поломки. Высота кнопки (или датчика) обычно устанавливается на 1,5–1,8 м от пола для удобства.
Преимущества для коммерческих проектов
Инсталляция для писсуара обеспечивает ряд преимуществ в коммерческих пространствах: гигиена (уменьшается количество микробов, т.к. нет нужно трогать кнопку с обычной инсталляцией с сенсором), современный дизайн, удобство уборки (пол полностью открыт), экономия воды (особенно с сенсорным управлением). Система инсталляции писсуара позволяет разместить несколько приборов на малой площади, что критично для офисов и ресторанов. Рамная система инсталляции для подвесных писсуаров решает проблему выравнивания и гарантирует одинаковую высоту всех писсуаров.
Выбирайте системы инсталляции для писсуаров от проверенных производителей — это гарантия надёжности на 10–15 лет эксплуатации в интенсивных условиях.
