Инсталляция для биде: выбор, технические параметры и лучшие системы
Инсталляция для биде — специализированная система крепления, которая работает по принципу инсталляции для унитаза, но предназначена для биде. Если инсталляция под унитаз скрывает большой встроенный бак объёмом 3–6 литров, то инсталляция для биде компактнее: содержит меньший бак (1–2 литра) и более узкую раму. Инсталляция под биде монтируется рядом с унитазом на той же высоте, что создаёт ненавязчивый и функциональный дизайн. Это решение популярно в Европе, где биде — стандартный предмет, но редко встречается в России из-за незнания о возможностях и технической сложности выбора.
Для биде нужна инсталляция: когда и зачем
Для биде нужна инсталляция в том случае, если вы планируете встроенное биде с парящей конструкцией. Инсталляция для биде позволяет полностью скрыть все коммуникации, оставляя видным только саму чашу биде и кнопку управления. Альтернатива — обычное напольное биде (более громоздкое, занимает больше места) или компактный биде-унитаз с интегрированной системой. Инсталляция под биде — выбор премиального сегмента, когда дизайн и функциональность — приоритет. Система инсталляции для биде обычно ставится одновременно с инсталляцией для унитаза в едином санузле, создавая гармоничный интерьер.
Отличие от инсталляции для унитаза
Инсталляция для биде существенно отличается от инсталляции для унитаза по размерам и функциям. Главное отличие: более компактные размеры (обычно 50–60 см высоты вместо 110–120 см для унитаза). Расстояние между инсталляцией и биде составляет 15–25 см (против 30–40 см для унитаза) — биде крепится ближе к стене благодаря меньшей глубине чаши. Система инсталляции для биде имеет меньший встроенный бак (1–2 литра вместо 3–6 литров). Кнопка управления и смывной механизм работают по тому же принципу, но регулировка мощности слива отличается — для биде нужен более тонкий контроль. Инсталляция под биде часто продаётся отдельно от унитаза, что позволяет комбинировать разные системы.
Geberit DuoFix и Grohe: лучшие бренды
Инсталляция для биде Grohe — популярный выбор благодаря универсальности. Инсталляция для биде grоe (груе) поддерживает различные модели биде, включая компактные варианты. Система обычно поставляется с двойной кнопкой управления и встроенным сливным баком. Инсталляция для биде Grohe Rapid SL — серия, адаптированная также для биде, хотя основной её ориентир — унитазы.
Инсталляция для биде Geberit DuoFix — настоящий стандарт для встроенного биде. Инсталляция duofix для биде представляет собой универсальную раму, совместимую с большинством биде. Инсталляция geberit duofix для биде обозначается артикулом 111.520 00.1. Инсталляция для биде 111.520 00.1 — специальная модель Geberit высотой 82 см, разработанная именно под биде. Инсталляция для биде duofix 111.520 00.1 включает встроенный бак, смывной механизм с пневматическим управлением и регулировку по высоте. Инсталляция для биде geberit 111.520 00.1 полностью совместима с системой управления Sigma в любых финишах (матовая, хром, чёрное стекло).
Инсталляция для биде geberit duofix 111.520 00.1 — профессиональный выбор дизайнеров и архитекторов. Инсталляция для биде тесе (Tece) — немецкий бренд, предлагающий компактные системы с упором на качество механизмов. Артикул 9330000 инсталляция для биде — модель Tece для стандартного биде. Инсталляция для биде a105 1120 — альтернативный вариант от другого производителя.
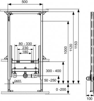
Технические параметры и совместимость
Инсталляция для биде размеры имеет стандартные: высота 50–82 см, глубина 80–120 мм, ширина крепления 50–60 см. Расстояние между инсталляцией и биде определяется конструкцией чаши — обычно это 15–25 см от стены. Система крепления рассчитана на нагрузку 150–200 кг (биде легче, чем унитаз). Встроенный бак содержит 1–2 литра воды, что достаточно для одного использования. Смывной механизм может быть механическим (простая кнопка) или пневматическим (мягкое нажатие, с опцией остановки слива). Система инсталляции для биде обычно поставляется с регулировкой по высоте ±3–5 см, позволяя адаптировать её под разные высоты ванной.
Совместимость инсталляции для биде проверяется по расстоянию между креплениями на дне биде и типу выпуска. Большинство европейских биде совместимы с системами Geberit и Grohe, но есть исключения — перед покупкой уточните спецификацию вашего биде.
Монтаж и скрытие системы
Монтаж инсталляции для биде выполняется аналогично монтажу для унитаза: рама крепится к стене, затем подводятся водоснабжение и слив, после чего возводится фальшстена толщиной 8–12 см. Инсталляция под биде требует отдельного подвода холодной воды и слива — обычно используется 6–8 л/мин водоснабжения. Высота установки инсталляции для биде обычно совпадает с высотой инсталляции для унитаза (60–65 см от пола до кнопки управления) для удобства пользования. После облицовки плиткой система полностью скрывается, остаётся видным только биде и кнопка управления. Требуется помощь опытного сантехника для правильного подключения и регулировки давления воды.
Выбор и покупка инсталляции для биде
Купить инсталляцию для биде нужно ещё на этапе проектирования ванной, чтобы согласовать размеры и расстояния. Инсталляция для биде лучше приобретать в комплекте с самим биде одного бренда — это гарантирует совместимость. В SantehKomfort Elite представлены системы инсталляции для биде от Geberit, Grohe, Tece и других премиальных производителей. Специалисты нашего шоурума 700 м² помогут выбрать подходящую модель и проконсультируют по техническим параметрам. Доставка по России, монтаж по договору. Скидки для дизайнеров и архитекторов при оптовом заказе.
Инсталляция для биде — инвестиция в элитный санузел. Выбирайте проверенные бренды и доверяйте монтаж профессионалам.
Почему выгодно купить инсталляции для биде Tece у нас
- 17+ лет опыта в продаже премиальной сантехники;
- Шоурум в центре Москвы, где можно посмотреть инсталляции для биде Tece «вживую»;
- Персональный менеджер для каждого заказа;
- Индивидуальные цены и специальные условия сотрудничества для дизайнеров и архитекторов;
- Бесплатное хранение товара до 1 года;
- Гибкий возврат — до 100 дней;
- Официальная гарантия и качественный сервис.
- Удобная доставка по Москве и области.
