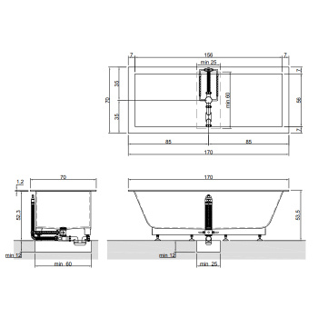
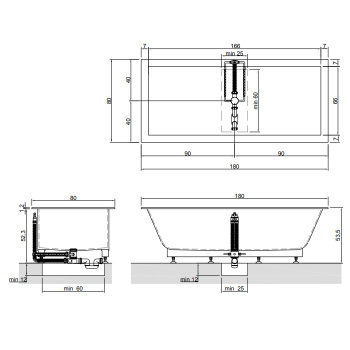
Коллекция Biblio выполнена из материала Moodlight и может вмещать открытые отделения для книг, предметов и аксессуаров с двух сторон.
Это полезное пространство для организации и персонализации вашего времяпрепровождения. Универсальное, поскольку может быть как отдельно стоящим, так и встроенным, и демократичное, поскольку доступно с любой стороны. Настраиваемое, поскольку небольшая встроенная библиотека может приобрести другой вид, если ее обшить деревом.
Абсолютное расслабление тела и разума благодаря коллекции Biblio от Antonio Lupi, которая выполняет основную функцию размещения, содержит воду, основной ресурс для жизни человека, и книги, с помощью которых можно утолить жажду знаний. Большие, строгие в своей чистоте формы с острыми углами.
Богатая новыми смыслами, она открывает простор для аксессуаров и поверхностей.
